Description
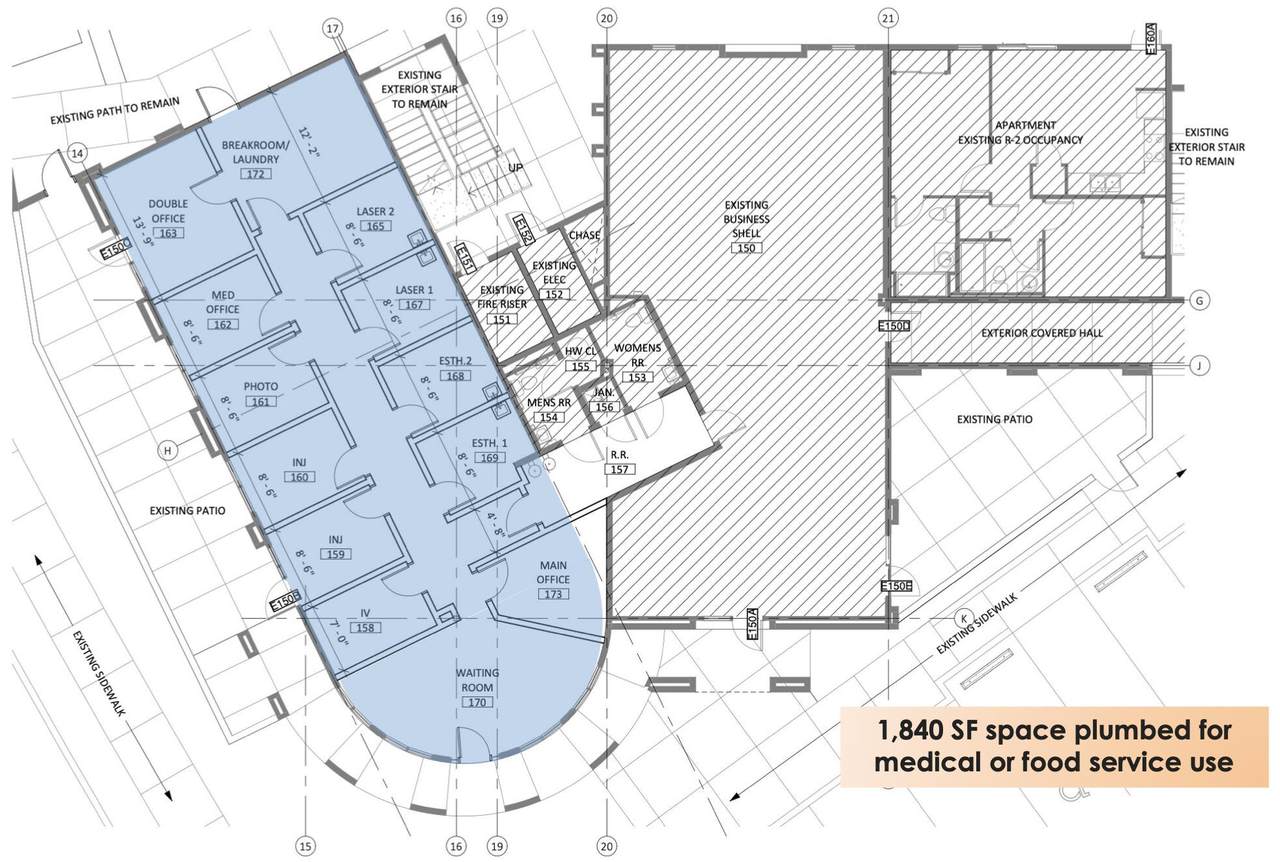
Building A 1,840 SF Plumbed Space for Lease.Building B & C Fully Leased.Two Shared ADA Restrooms.Momo Cocktail Lounge & Ponderosa Tap Room.Walkable Old Town Location.Across from Botanical Gardens and Aquarium.32 Fully Leased Apartments Onsite.42 Adjacent Motel Rooms, new Hostel.ABQ Rapid Transit Stop.26,100 Central Ave Vehicles Per Day,30,100 Rio Grande Blvd VPD.
-
0BEDS
-
0.89ACRES
-
0BATHS
-
01/2 BATHS
School Ratings & Info
Description
Building A 1,840 SF Plumbed Space for Lease.Building B & C Fully Leased.Two Shared ADA Restrooms.Momo Cocktail Lounge & Ponderosa Tap Room.Walkable Old Town Location.Across from Botanical Gardens and Aquarium.32 Fully Leased Apartments Onsite.42 Adjacent Motel Rooms, new Hostel.ABQ Rapid Transit Stop.26,100 Central Ave Vehicles Per Day,30,100 Rio Grande Blvd VPD.
IDX information © 2026 The Southwest Multiple Listing Service, Inc. IDX information is provided exclusively for consumers' personal, non-commercial use and may not be used for any purpose other than to identify prospective properties consumers may be interested in purchasing. Data is deemed reliable but is not guaranteed accurate by The Southwest Multiple Listing Service or Coldwell Banker Legacy. Data last updated: 2026-02-16T00:05:02.283.

Listing courtesy of EXP Realty LLC: (505) 554-3873. © 2026 Southwest Multiple Listing Service, Inc.