Description
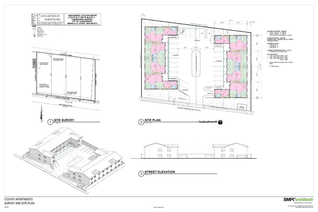
** Priced to sell! Development site with 24-unit apartment plans. Conceptual plans have already been approved by the City of Albuquerque's Development Review Board and the Fire Marshal's Office. Owner financing is available--20 % down, 3-5-year term, plus additional options. Build-to-suit services (custom design and construction available at cost) can also be arranged.
-
0BEDS
-
0.65ACRES
-
0BATHS
-
01/2 BATHS
School Information
Description
** Priced to sell! Development site with 24-unit apartment plans. Conceptual plans have already been approved by the City of Albuquerque's Development Review Board and the Fire Marshal's Office. Owner financing is available--20 % down, 3-5-year term, plus additional options. Build-to-suit services (custom design and construction available at cost) can also be arranged.
IDX information © 2025 The Southwest Multiple Listing Service, Inc. IDX information is provided exclusively for consumers' personal, non-commercial use and may not be used for any purpose other than to identify prospective properties consumers may be interested in purchasing. Data is deemed reliable but is not guaranteed accurate by The Southwest Multiple Listing Service or Coldwell Banker Legacy. Data last updated: 2025-11-10T14:05:13.573.

Listing courtesy of Coldwell Banker Legacy: (505) 292-8900. © 2025 Southwest Multiple Listing Service, Inc.